
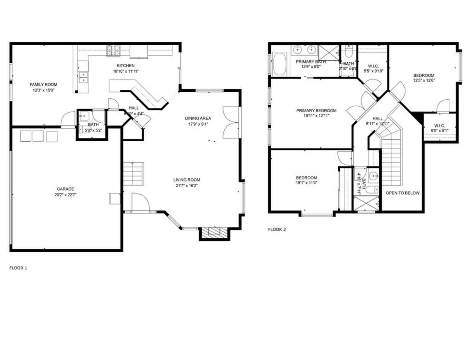
On the market for the first time in nearly 40 years, this beautifully maintained 3-bedroom, 2.5-bath home is a must-see opportunity in Woodbridge, just steps from South Lake. Thoughtfully updated, this corner-lot home features a newly remodeled kitchen with a separate dining area and family room. The spacious living room boasts a soaring vaulted ceiling that floods the space with natural light, complemented by elegant plantation shutters for added privacy. Fresh paint throughout enhances the bright and inviting atmosphere. Step outside to a private outdoor patio, perfect for soaking up the California sunshine or entertaining guests. Additional highlights include a 2-car attached garage, a long private driveway with ample parking, and a desirable floor plan with no shared floors above or below. Situated on a quiet cul-de-sac and just steps from top-rated Irvine schools—including nearby elementary and middle schools, this home also offers easy access to Woodbridge’s renowned amenities. Don’t miss this rare opportunity to own a home in one of Irvine’s most desirable communities!
