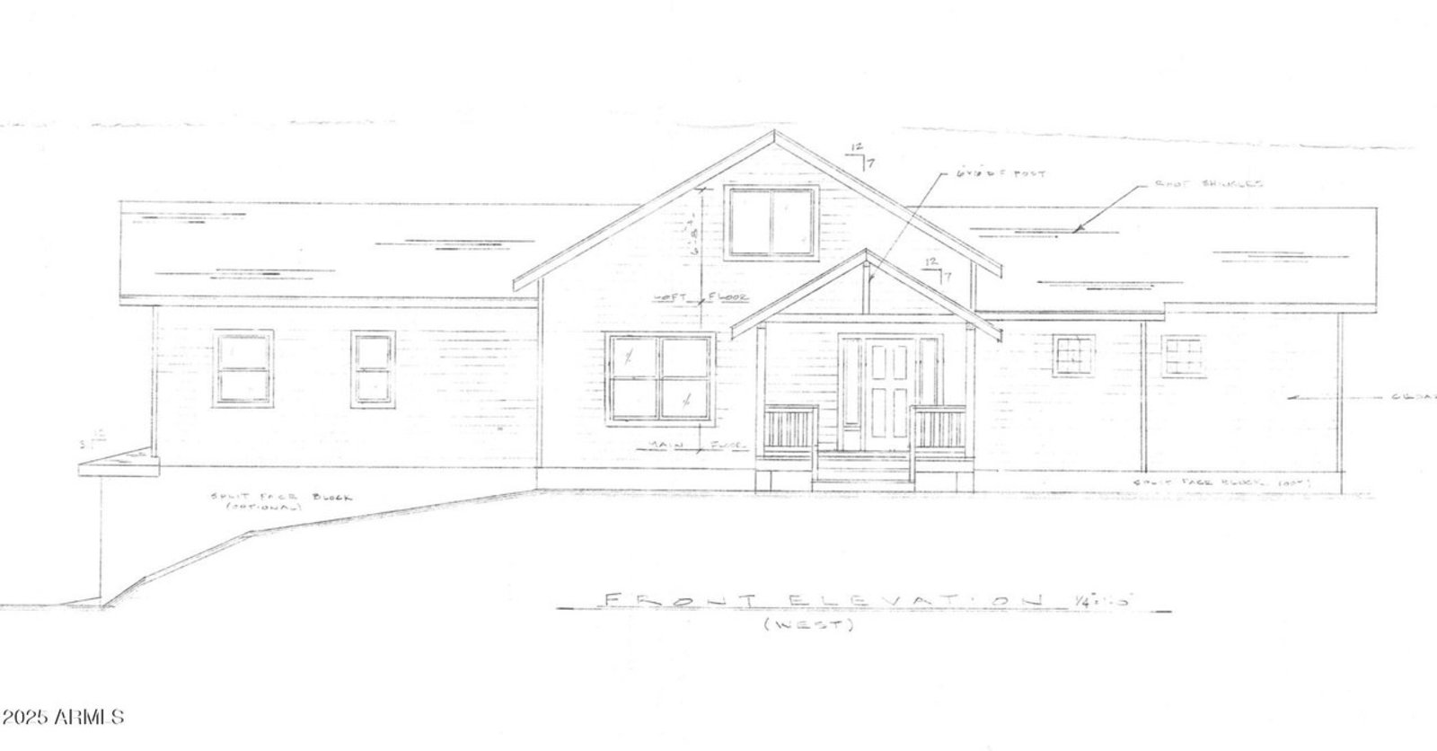
Wow, the view is great from this elevated top-of-the-hill view homesite in Pine, AZ's prestigious Portal subdivision! This .39 acre sloping lot offers a prime perch for your dream mountain home with stunning vistas of the Mogollon Rim. Improved with utilities to the lot, it's accessible via a paved street to a serene, perfectly oriented, cul-de-sac home-site in a beautiful neighborhood. A great escape, Pine's weather is ~20° cooler than the valley's summer heat, perfect for year-round enjoyment, tranquility, and outdoor fun—hiking and Verde River adventures await. Enjoy great shopping, dining, and welcoming people, all an easy drive—less than 2 hours from Phoenix via the scenic BeeLine Highway. A completed home design is yours with an acceptable offer. Seize this cool, inspiring retreat! Welcome message on the Portal 3 HOA website: Half way up the sunrise-lit side of Pine Creek Canyon is the residential community of Portal III. One hundred and ninety eight properties have unique blends of shady pine woods and breathtaking views. Milk Ranch Point, 1000 feet above Portal III across Pine Creek Canyon on the Mogollon Rim, dominates the view to the east. To the north, the canyon dwindles as the east and west walls converge. To the south, the canyon view opens wide for a distant view of the Mazatzal Mountains and Four Peaks, 75 miles away. To the west, Portal III abuts the Tonto National Forest and shares its wildlife. With a four-season climate and lot plans that protect privacy, residents are led to outdoor living. Harmony of building and land is key, maximizing the natural environment. Each home is individually crafted to complement the natural setting of the land and reflect the woodsy settings. This community is less than two hours from Phoenix and Scottsdale for convenient weekend getaways. Situated between the quaint towns of Pine and Strawberry, it is just 15 miles north of Payson.