
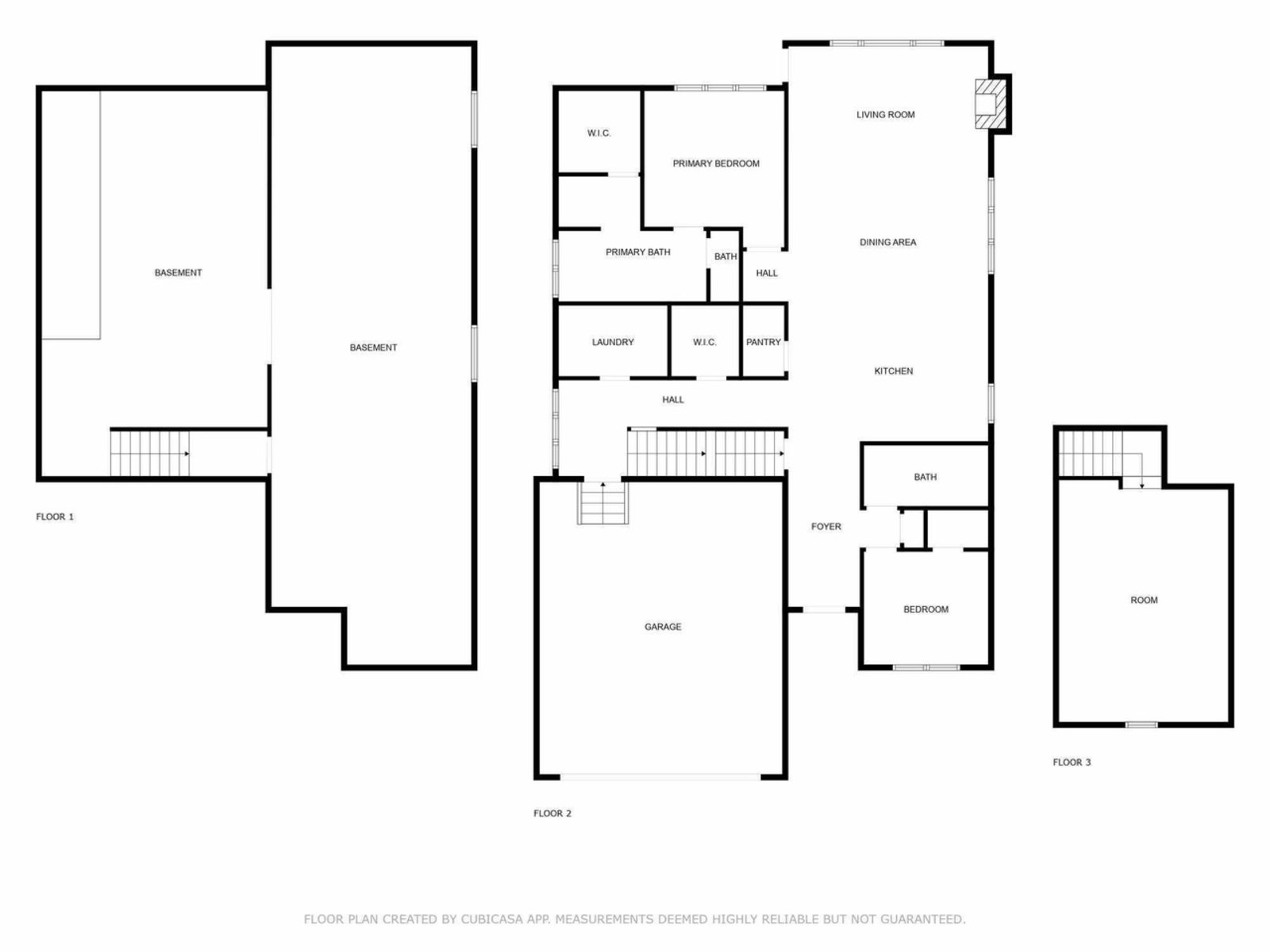
Welcome to this pristine, nearly new home in the heart of Saint Croix Falls! Built in 2021, this thoughtfully designed residence offers modern comfort and convenience with all living facilities on the main level and still like brand new! Step through the front door and be greeted by a bright and open floor plan. The main level boasts a spacious, contemporary kitchen featuring stainless steel appliances, a large island perfect for gathering, and plenty of cabinet space. The primary bedroom suite offers a private retreat with a luxurious soaking tub, a walk-in shower, and a walk-in closet. An additional bedroom, a full bathroom, a laundry room, and a cozy living room with access to the outdoor patio complete this level. The upper level features a large third bedroom, perfect for guests, a home office, or a bonus space. The unfinished lower level is ready for your personal touch, offering endless potential for additional living space. Outside, enjoy the attached 2-car garage, a patio for relaxing or entertaining, and a low-maintenance yard. Conveniently located near scenic walking trails, this home is perfect for enjoying the natural beauty of the area. Don’t miss this opportunity to make this modern and move-in-ready home yours!