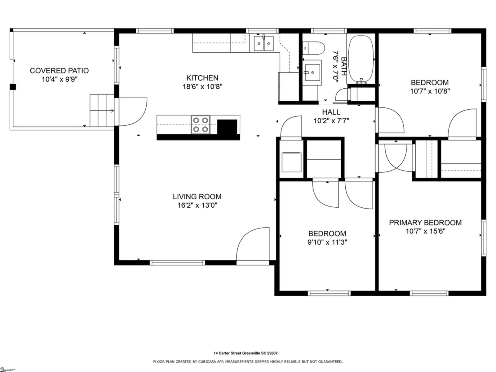
Full of character and thoughtfully updated, 14 Carter Street is a charming 1950s home that blends vintage style with modern comfort! Located in Greenville’s historic Nicholtown neighborhood, this three bedroom, one bath gem offers warm, welcoming spaces both inside and out. The classic front porch, framed by wrought iron railings, sets an inviting tone before you even step foot inside. Once you enter, you are greeted by gleaming refinished hardwood floors and a light-filled living room which is anchored by a wide picture window. The living room flows right into the remodeled kitchen, where modern finishes complement the home’s mid-century soul. White cabinetry, granite countertops, stainless steel appliances, ceramic tile backsplash, and tile floor all come together in a space that feels fresh but timeless. A cozy built-in dining nook is tucked into the corner and is just the right spot for slow mornings and casual meals. All of the bedrooms are down the hall, away from the central living spaces, ensuring restful evenings. The full bathroom has been beautifully updated with gray subway tile in the tub/shower surround and modern vanity. You're sure to also love the built-in linen closet in the bathroom which is perfect for storing your towels, cleaning products, and self care items. Each of the three bedrooms are well-sized with generous closets, making them versatile enough for any of them to double as a home office, game room, or guest area. As you step outside, you will discover the nicely sized back yard where there is plenty of room to garden, cook out, or relax. A covered patio off the kitchen side makes a perfect spot for outdoor dining or quiet evenings, leading out to the fully fenced back yard. Plus, the attached carport adds extra convenience, making it easy to enter and exit your car in inclement weather. This charming home is just minutes from Downtown Greenville, Laurens Road’s restaurants and shops, and less than a mile from the Greenville Zoo and Cleveland Park. If you’ve been looking for a place with personality, updates, and a location that puts you close to it all, 14 Carter Street is ready to welcome you home. Schedule your showing today!