
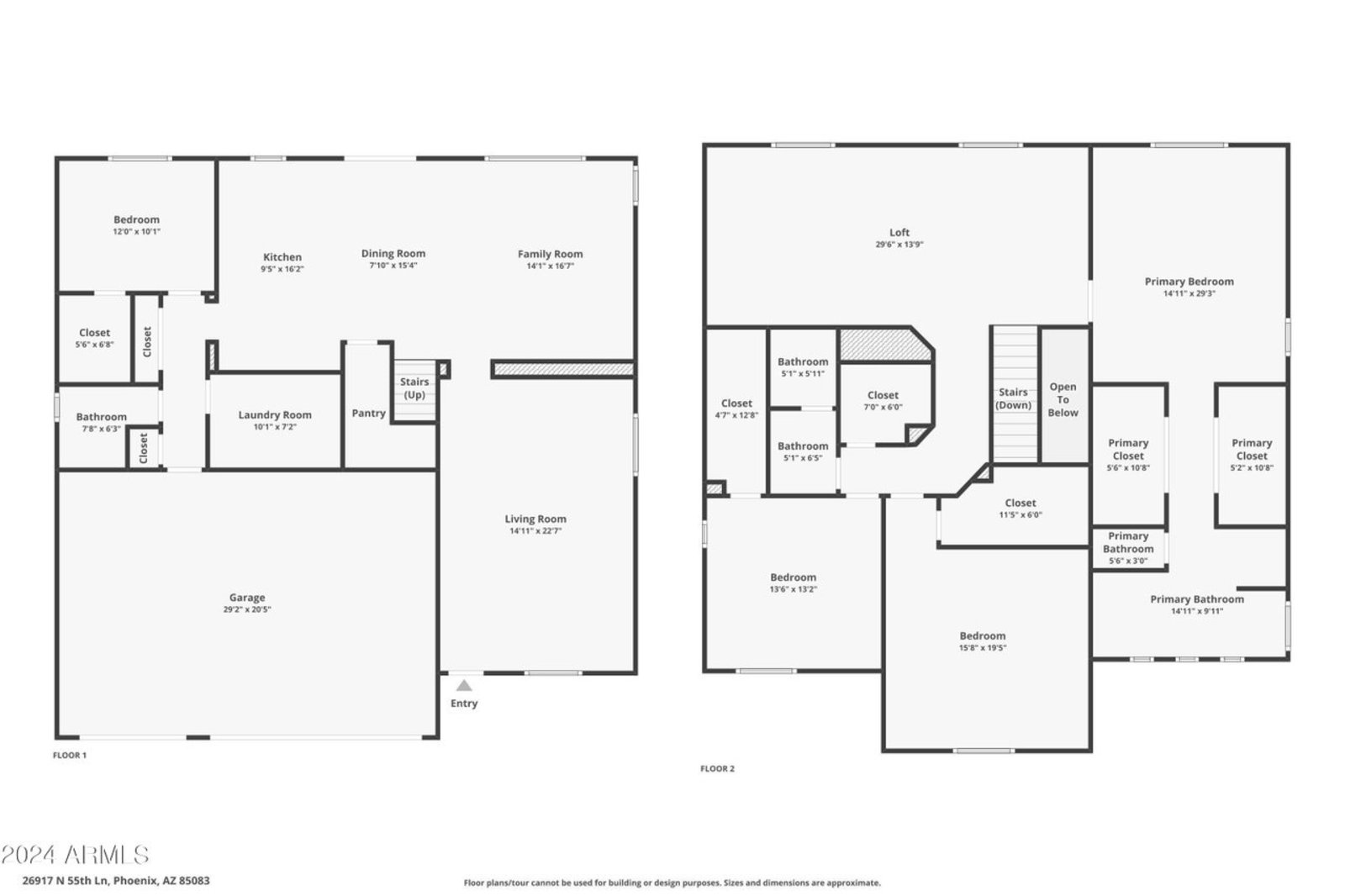
Experience living in this stunning 4 bed/2.5 bath home in Stetson Valley! Boasting a spacious layout with formal living/dining & a MASSIVE loft upstairs-this home is perfect for entertaining. The primary suite features two walk-in closets for added convenience. Chef's dream kitchen includes a gas stovetop, double oven, granite countertops, and pull-out drawers. Upgrades include a tankless water heater and artificial grass. Enjoy privacy & tranquility with no neighbors behind or beside on a Cul-De-Sac lot. Each bedroom features walk-in closets, making this home a must-see for those seeking a well-equipped living space. Take advantage of the pool and numerous hiking/biking/walking trails in the community. 2 dog parks & soccer fields nearby! This home is ready for its forever family!