
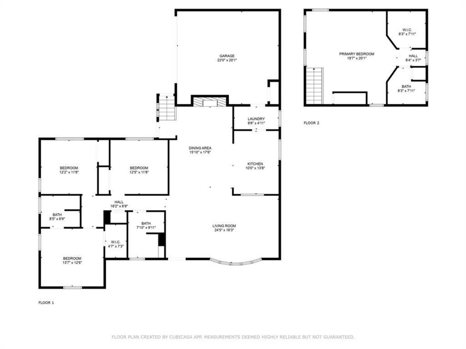
Great open floor plan in this four bedroom home with three bathrooms. The spacious living and dining areas flow into the updated kitchen with hardwood floors throughout. Enjoy the front dining area with a large picture window. Kitchen features stainless steel appliances, gas cooktop, vent mechanism, and granite counter tops. Upstairs is the fourth bedroom that can be a second primary bedroom, game room or guest room that includes a large walk in closet and full bath. Primary bedroom on first floor includes a walk in closet and bath. Two other bedrooms and one bath on first floor. Large backyard with two car attached garage and gated entryway. Low windows and recently replaced carpet in all bedrooms.