
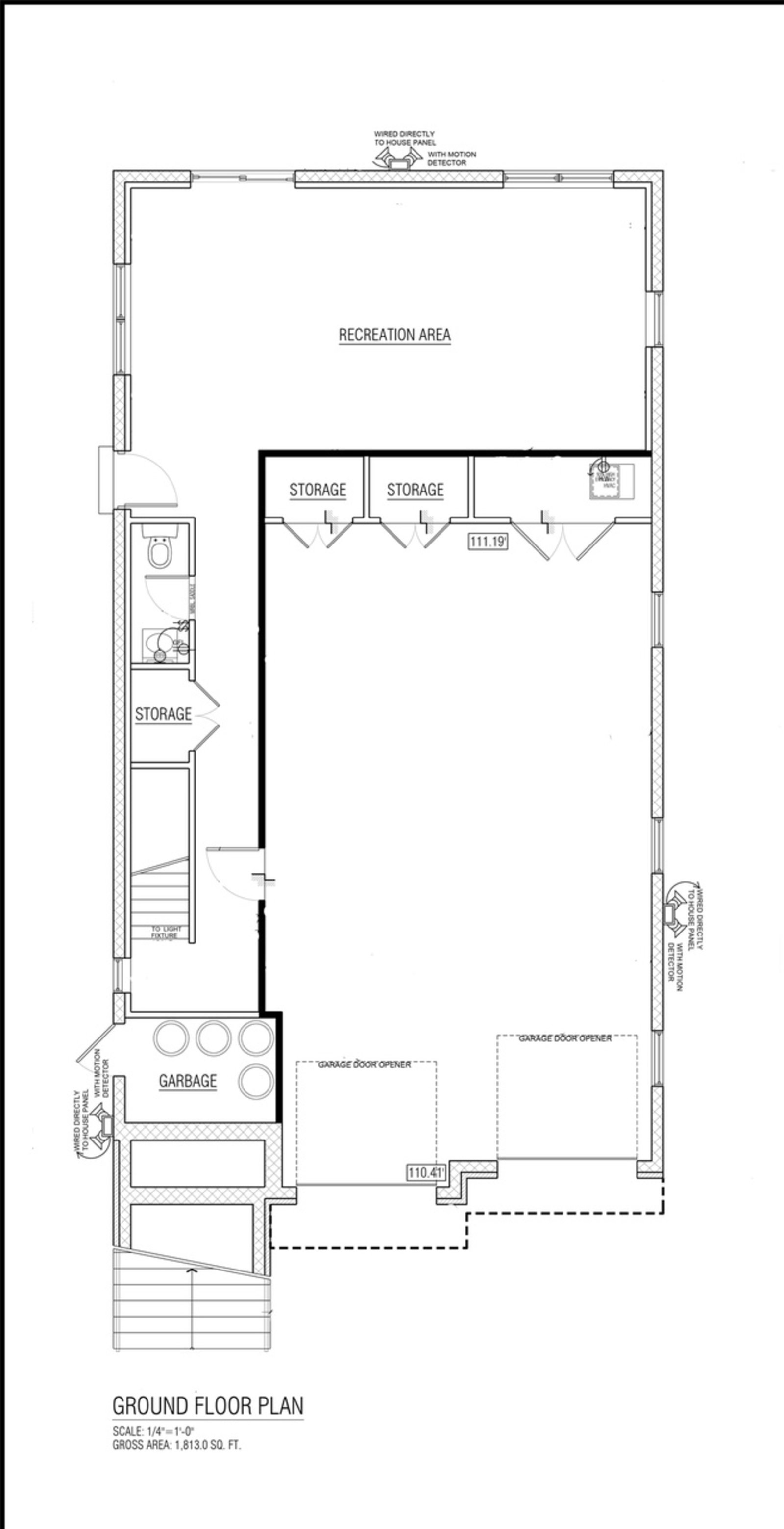
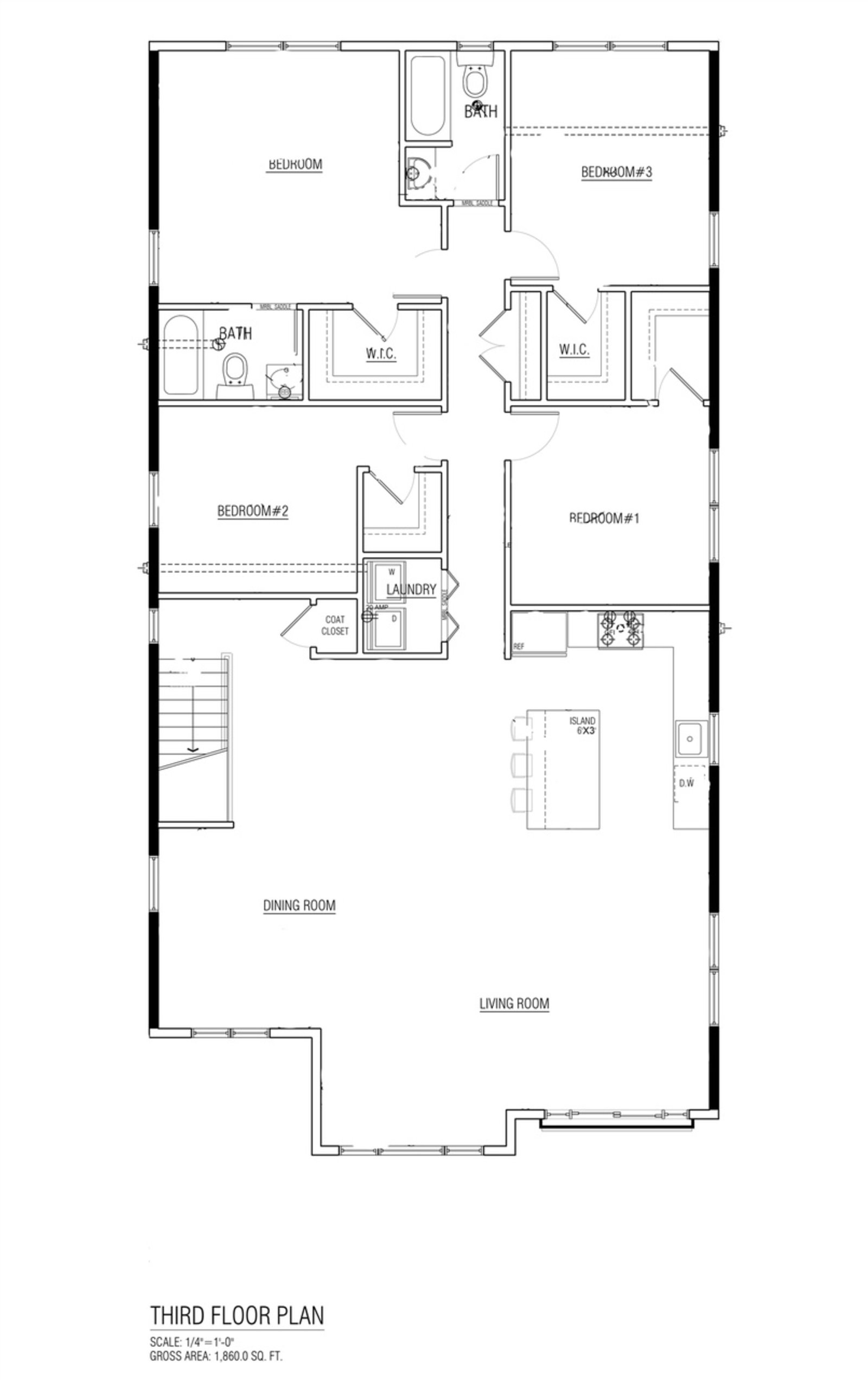
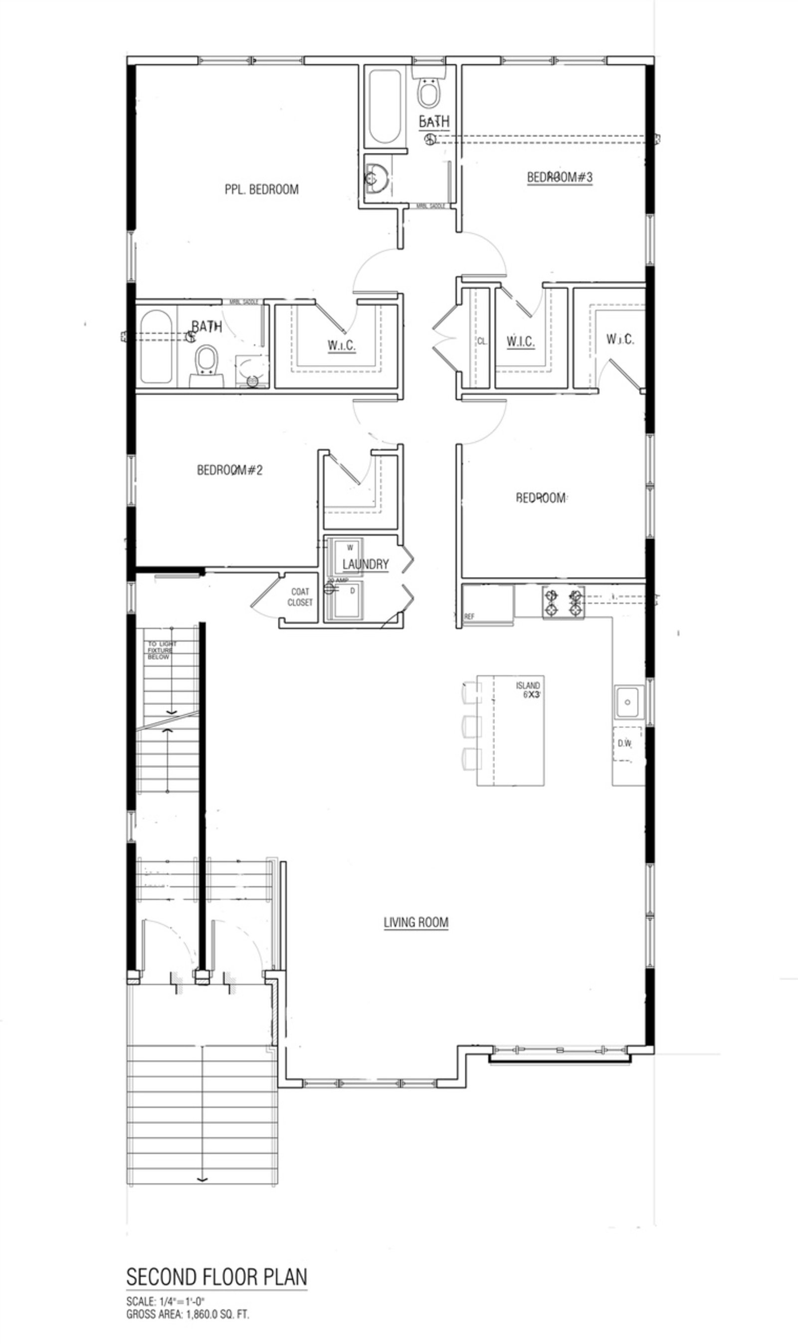
Welcome to 38 Newfield St, a 2-Family offering a contemporary living space in East Orange. This elegant dwelling is framed by its distinct fa ade that blends modern materials with classic charm. The property spans a generous 1,860 sq ft of living space per apartment & 1,813 in the ground fl. an amazing 5,533 Sq Ft of total space. The floor plan reveals a thoughtful layout beginning with a spacious living room and open dining area that creates the perfect ambiance for memorable meals & gatherings. The kitchen is designed to inspire culinary endeavors, featuring a large island and premium finishes. The inclusion of a dedicated laundry space emphasizes practicality and convenience. Accommodations include 8 well-appointed bedrooms, each boasting walk-in closets, offering residents privacy and ample storage. 5 baths serve the home, ensuring facilities are readily accessible from any area of the residence. Constructive elements like clean lines, strategic window placements, and balcony space come together to create an aesthetic that is both functional and visually appealing. The built-in garage, a valuable amenity that underscores the home's dedication to both aesthetic charm and functional living requirements. This property promises to be a serene retreat, harmoniously blending style, space, and functionality. It is an ideal opportunity for those seeking a modern home in a vibrant community, with the promise of a comfortable and stylish living experience.