
Alisha Krause
REALTOR®
Professional Realty Services
Primary (509) 671-7630 Office (509) 245-2005
LIC# WA: 113859 | LIC# ID: SP41637
|
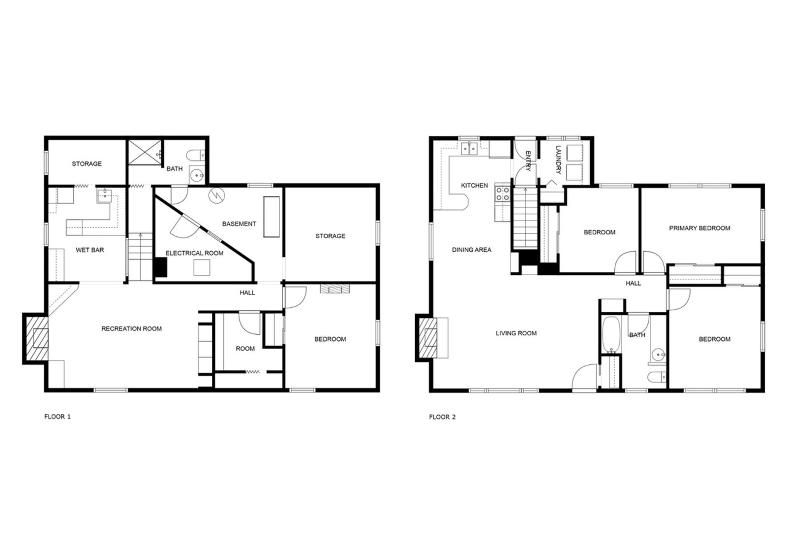
Lots of room for family and friends this Subdividable multi family zoned lot is perfect for you and your family. Can put a duplex on the back half and live on the front half this 5 bed 2 bath is ready for you to call home. A nice living room with 3 bed upstairs and main floor laundry, a wet bar with 2 bed and 1 bath in the basement if you want mother in law set up take out the bar and put in a kitchen plenty of room for everyone. New roof installed 2021 and new high efficiency gas furnace with AC installed for these hot summer nights with winter right around the corner. You won't be disappointed with this .74 acre lot in town close to all amenities.