
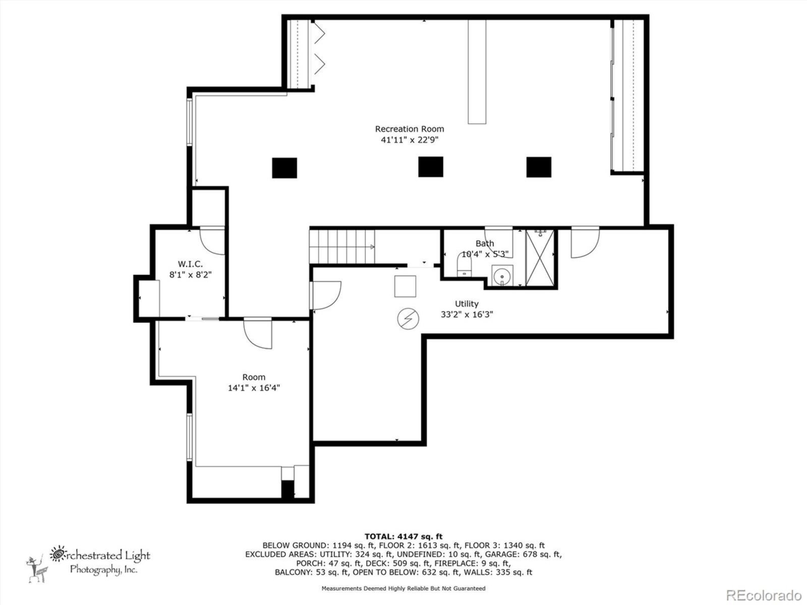
Welcome home to this spacious 5-bedroom, 4-bath gem in Highlands Ranch, perfectly tucked away on a quiet street with a rare .3-acre lot backing to a greenbelt. Fresh paint and brand-new carpet throughout make it move-in ready for its new owners. Step inside to soaring vaulted ceilings and a cozy brick fireplace in the living room. The formal dining room is perfect for gatherings, with space for 10 and timeless details like a tray ceiling and wainscoting. The bright and open family room, complete with vaulted ceiling and gas fireplace, flows right into the kitchen—an ideal setup for everyday living and entertaining. The backyard is made for enjoying Colorado evenings, with a spacious composite deck, built-in gas firepit, and peaceful greenbelt views. Upstairs, the primary suite offers a private retreat with its own balcony, sitting area, walk-in closet, and updated 5-piece bath. Three additional bedrooms—all with walk-in closets—a full bath with double vanity, and a versatile loft provide plenty of room for everyone. The finished basement adds even more space with a large rec area, tons of storage, and a bedroom with garden-level window, walk-in closet, and ¾ bath. An oversized 3-car garage completes the picture. Located just a short walk to Bear Valley Elementary and close to all the pools, rec centers, parks, trails, and events that make Highlands Ranch so special. With its blend of comfort, space, and community, this home is ready to welcome its next chapter.